株式会社バイカル

タグ『#古家有』のページ一覧

お問い合わせはこちら

タグ『#古家有』のページ一覧

タグ『#古家有』のページ一覧

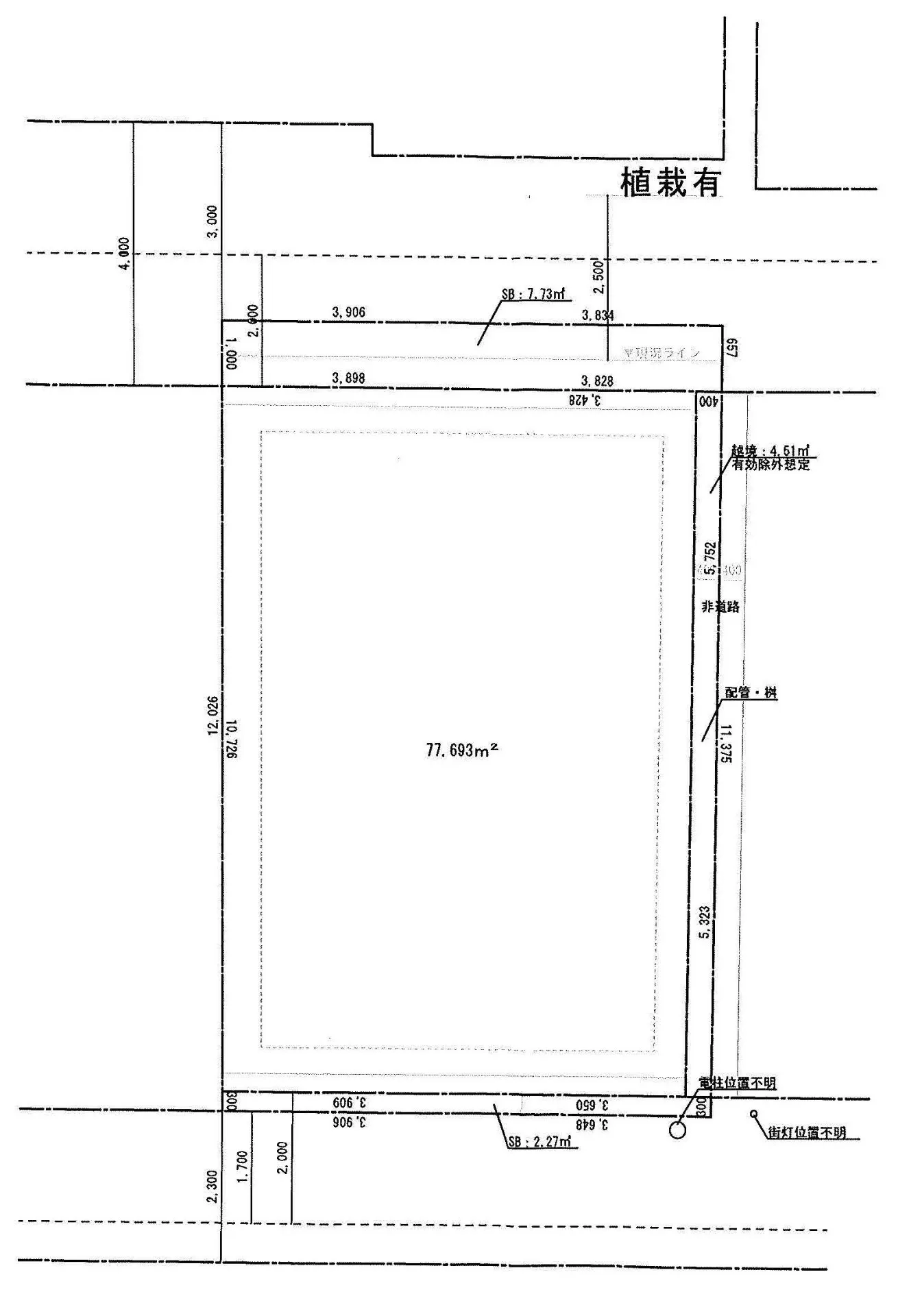
成約済み ★解体更地渡し、建築条件無し★ 土地面積:92.6m2(28.01坪)(登記) 所在地:大阪市西成区橘3丁目ーおすすめポイントー■有効土地面積:約77.69m2(約23.50坪) ■複数沿線利用可能 ■解体更地渡…

当店でご利用いただける電子決済のご案内

下記よりお選びいただけます。